Dom pod Opolem
Basia i Arek – małżeństwo rzucane przez pracę w różne zakątki świata. Chcąc mieć kawałek swojego miejsca, postanowili kupić stary budynek nad rzeką. Wymarzony dom Basi i Arka znajduje się w małej miejscowości Chomiąża, która mieści się na skraju parku krajobrazowego i jest też miejscowością graniczną z Czechami.
Projekt miał na celu zmodernizowanie, rozbudowanie i nadbudowanie budynku.
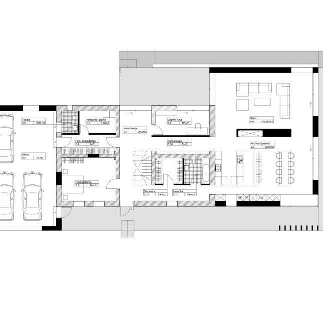
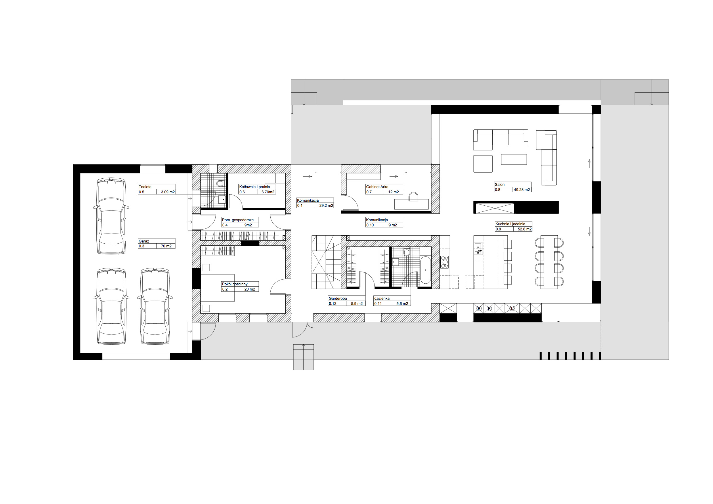
Rozbudowana została część parterowa domu, gdzie obecnie znajduje się garaż na 2 auta, a w części mieszkalnej przestronna kuchnia z jadalnią, mogąca pomieścić wszystkich domowników i gości, i salon. Oba te pomieszczenia posiadają wyjścia na teren ogrodu. Dodatkowo z kuchni rozciąga się widok na rzekę, główne wejście do domu i taras.
Na parterze znajduje się również łazienka, garderoba, gabinet, pokój dla gości oraz pralnia z kotłownią.
Na piętrze, które zostało nadbudowane, mieszczą się sypialnie dzieci i przestronna sypialnia rodziców, wraz z garderobą i łazienką.
Cały budynek przyjął nowoczesną formę, którą uwydatniają duże okna i ażurowe zadaszenia, rozświetlające wnętrza. Część parterowa budynku wykończona jest drewnianą okładziną, zaś sam garaż – czarnym tynkiem. Piętro jest w kolorze bieli, co dodaje budynkowi lekkości. Całość spięta jest pasem zadaszenia łączącego się z czarnymi słupkami, które doskonale zamykają bryłę budynku od frontowej strony.
- realizacja: 2013
- powierzchnia: 300m2
- lokalizacja: Chomiąża koło Opola





